Grundrisse & Preise
| Haus | Hausnummer | Wohn- und Nutzfläche (ca.-Werte) |
Kaufpreis | Grundriss |
|---|---|---|---|---|
| Bauabschnitt 3 | ||||
| Haus 1 | 1 (239/7) | 190 m² | 1.290.000 € | EG . OG . DG . UG |
| Haus 2 | 3 (239/6) | 190 m² | 1.190.000 € | EG . OG . DG . UG |
| Bauabschnitt 2 | ||||
| Haus 3 | 5 (239/5) | 190 m² | 1.190.000 € | EG . OG . DG . UG |
| Haus 4 | 7 (239/4) | 190 m² | 1.190.000 € | EG . OG . DG . UG |
| Bauabschnitt 1 | ||||
| Haus 5 | 9 (239/3) | 190 m² | 1.190.000 € | EG . OG . DG . UG |
| Haus 6 | 11 (239/2) | 190 m² | 1.190.000 € | EG . OG . DG . UG |
| Garage mit Vorplatz (Haus 2, 3, 4, 5) | 25.000 € | -- | ||
| Außenstellplatz mit Vorplatz (Haus 1, 6) | 12.000 € | -- | ||
Gesamtfläche gemäß Wohnflächenverordnung (WoflV) inkl. Nutzfläche; alle Werte ca.-Angaben. Der Hauspreis ist ein Festpreis. Er beinhaltet das schlüsselfertige Haus einschließlich Grundstück, erstmalige Erschließungs- und Anschlusskosten für Wasser, Kanal, Glasfaserinternet und Strom.
Je Haus ist der Kauf von einer Garage mit Vorplatz bzw. ein Stellplatz mit Vorplatz erforderlich.
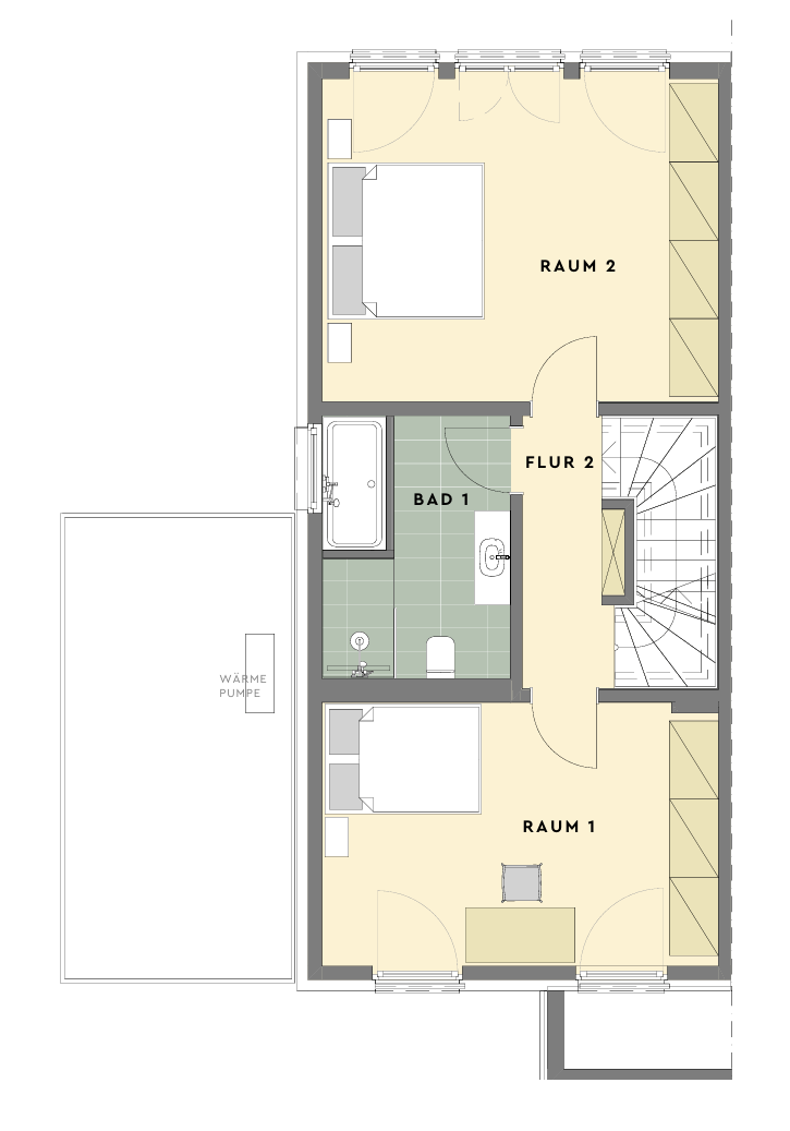
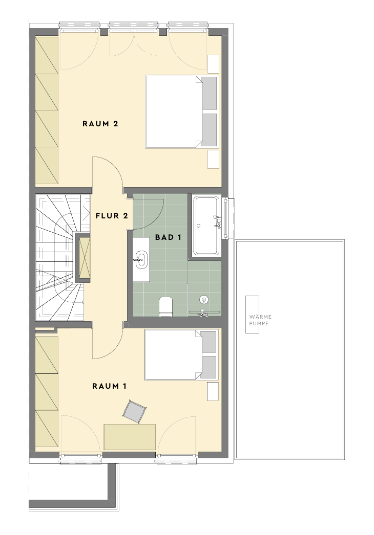
Grundrisse:
Kontakt
Centra Immobilien GmbH
An der Norr 12
65307 Bad Schwalbach
Ralf Jordan
06124 70 02 20
jordancentrabau.de
www.centrabau.de